For Sale €430,000 - Houses, Luxury Villas
This independent villa is part of an exclusive complex of just 5 residences, located on a peaceful hillside in Ammoudara village, only 5 km from the vibrant town of Agios Nikolaos and just a 5-minute walk to the sandy beach.
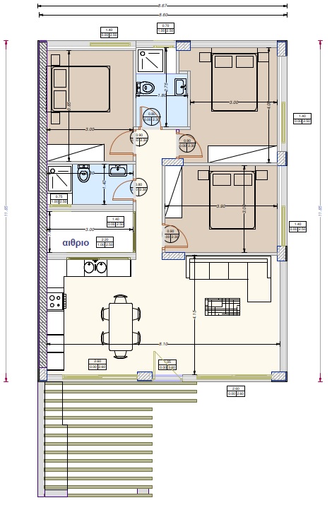
Set on a private plot of 342 sq.m., the villa offers 99 sq.m. of living space on one level, complemented by a 36 sq.m. private parking area with space for 2 cars.
The home features:
-3 double bedrooms
-2 bathrooms
-Bright open-plan living, dining & kitchen area
-Private terrace with 3×6 m swimming pool and lounge area
Construction is scheduled to begin in autumn 2025, with completion planned for summer 2027.
This villa combines modern design, privacy, and proximity to the sea—an ideal holiday retreat or investment opportunity in one of Crete’s most desirable areas.
All 5 villas in a complex will have 2 parking spaces and a swimming pool.
Most living areas of the villas will have Greek origin marble floors (only the bedrooms will have wooden (oak) floors or tiles).
Villa complex consists of 5 residences (all for sale): 2 maisonettes and 3 one-storey houses:
Villa 1: 153 sq.m. on plot 363 sq.m., 720.000€.
Villa 2: 99 sq.m. on plot 342 sq.m., 430.000€.
Villa 3: 77 sq.m. on plot 459 sq.m., 330.000€.
Villa 4: 114 sq.m. on plot 502 sq.m., 530.000€.
Villa 5: 73 sq.m. on plot 490 sq.m., 315.000€.
- Measurements and distances are approximate and intended as a guide only.
- The price does not include buyer's purchase expenses (purchase tax, legal/administrative costs and real estate agent fee).










